技术讲座
技术讲座
首页 技术讲座 关于连消系统热侧压力大于冷侧压力的说明

关于连消系统热侧压力大于冷侧压力的说明
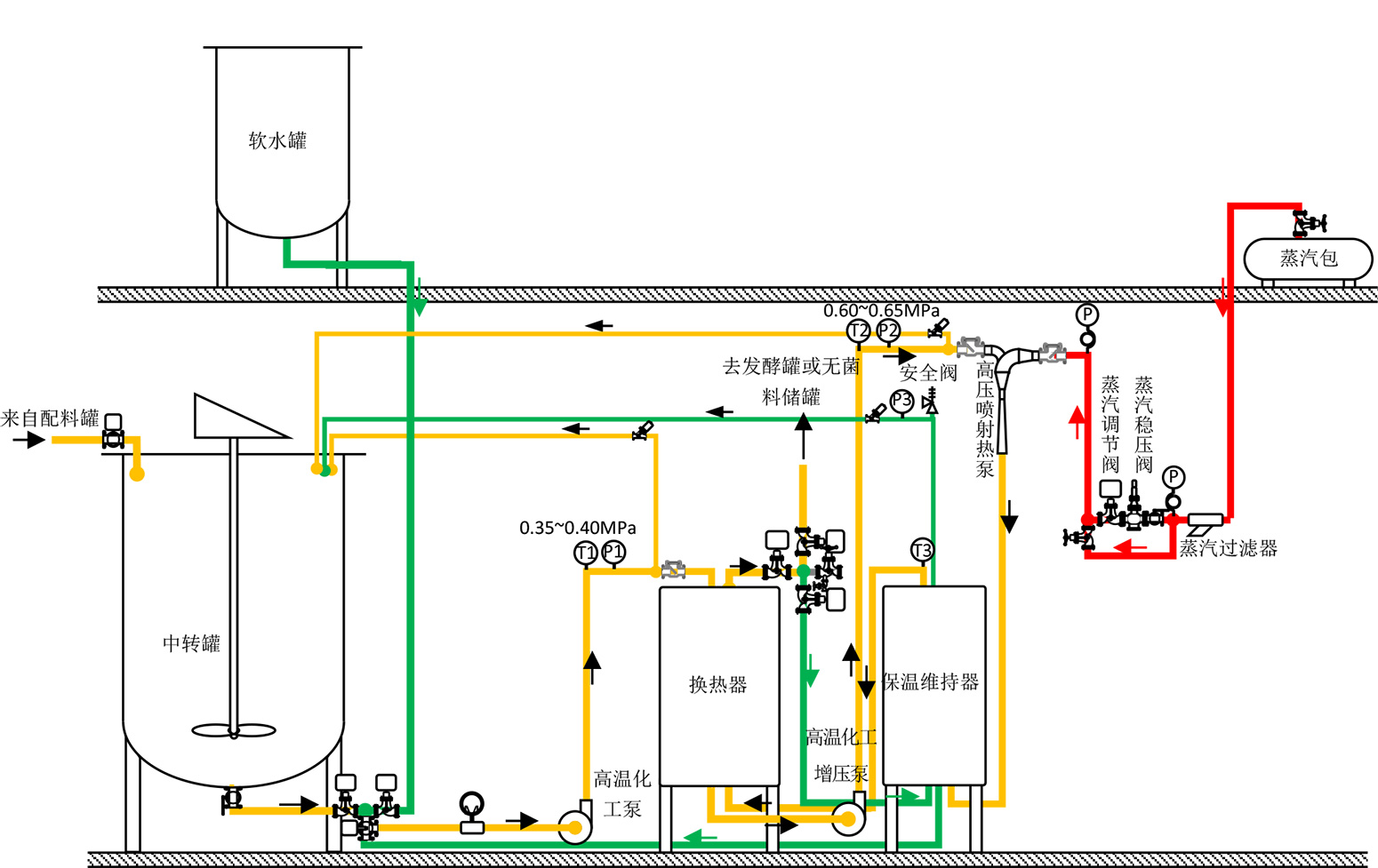
       参见下图,打料泵的出口压力为0.35~0.40MPa,经过换热器冷侧通道的压力降约为0.1MPa,压力约下降至0.25~0.30MPa,随后经增压泵可增压至0.65~0.70MPa,变频控制在0.60~0.65MPa,进高压喷射泵的蒸汽压力基本上可同高压喷射泵的阻力抵消,保温维持器压力降约为0.05MPa,故保温维持器的进出口压力分别为0.60~0.65MPa和0.55~0.60MPa,进入换热器热侧通道的压力亦为0.55~0.60MPa,而热侧通道的压力降约为0.1MPa,如此换热器热侧的出口压力约为0.50~0.55MPa,换热器热侧的进出口压力比换热器冷侧的进出口压力均高约0.15MPa。
       由于换热器热通道压力高于冷通道压力0.15MPa,因此可以确保冷侧物料不会串入热侧而造成染菌,而两侧的这个压力差也在螺旋板换热器国家标准允许的0.2MPa以内。


设备泄露的检查方法
       换热器通道内漏检测方法:在换热器一个通道的下方法兰处加盲板,保持微漏,卸开上方法兰,用自来水管灌满清水,然后将盲板拧紧,确保不漏,向另一个通道的一端法兰处加盲板,自另一端打入压缩空气,保持0.3~0.5MPa的压力,观察加水通道有没有气泡冒出和压力是否能保持住。然后,放出灌水通道的水,向另一个通道注满水,按同样方法在原先灌水的通道进行空气打压试漏。
       换热器通道外漏检测方法:在上述内漏检查过程中,如果加水测不冒泡,而加气侧压力保持不住,则说明有外漏。这时,可打开两头的保温层,用肥皂水检查螺旋焊缝的外漏点位置。
       注意:绝对不能在另一个通道未注满水的情况下向一个通道打气压。当一个通道打气压时,另一个通道在挤压作用下水位会有所上升,而泄压以后,水位又会有所下降,这是正常现象,这要不冒泡,就不应视为设备渗漏。
       维持器通道外漏检测方法:将维持器上方通道口用盲板堵死,自下方通道口打入0.3~0.5MPa的压缩空气,关闭气泵出口阀门并停泵,待压力稳定后,观察4小时是否有压力下降情况。如有压力不断下降,则打开两头的保温层,用肥皂水检查螺旋焊缝的外漏点位置。
       过热水通道泄漏检测方法:在过热水通道下方进出水口的法兰处加装盲板,自上方排气口打入0.5~0.6MPa的压缩空气,观察是否能保持住压力。如不能保持压力,则用肥皂水检查上下配管和上下封头焊缝的泄露情况。

石家庄吉瑞节能技术有限公司2025年2月23日